fbpx

7 Merriman Court Cramahe, Ontario K0K 1S0

3 Bedroom 3 Bathroom 1,100 - 1,500 ft2
Bungalow Central Air Conditioning Forced Air

$866,950

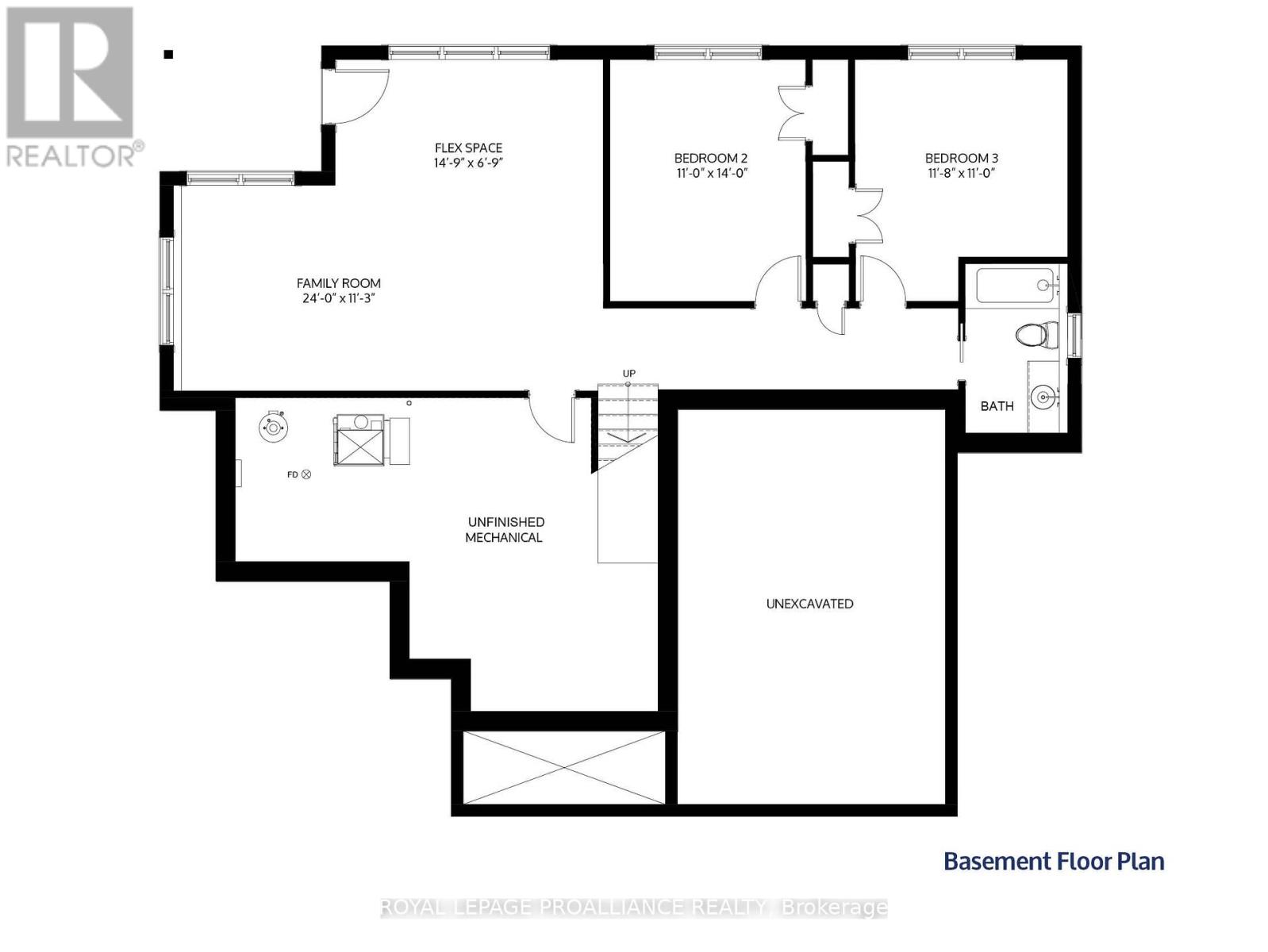
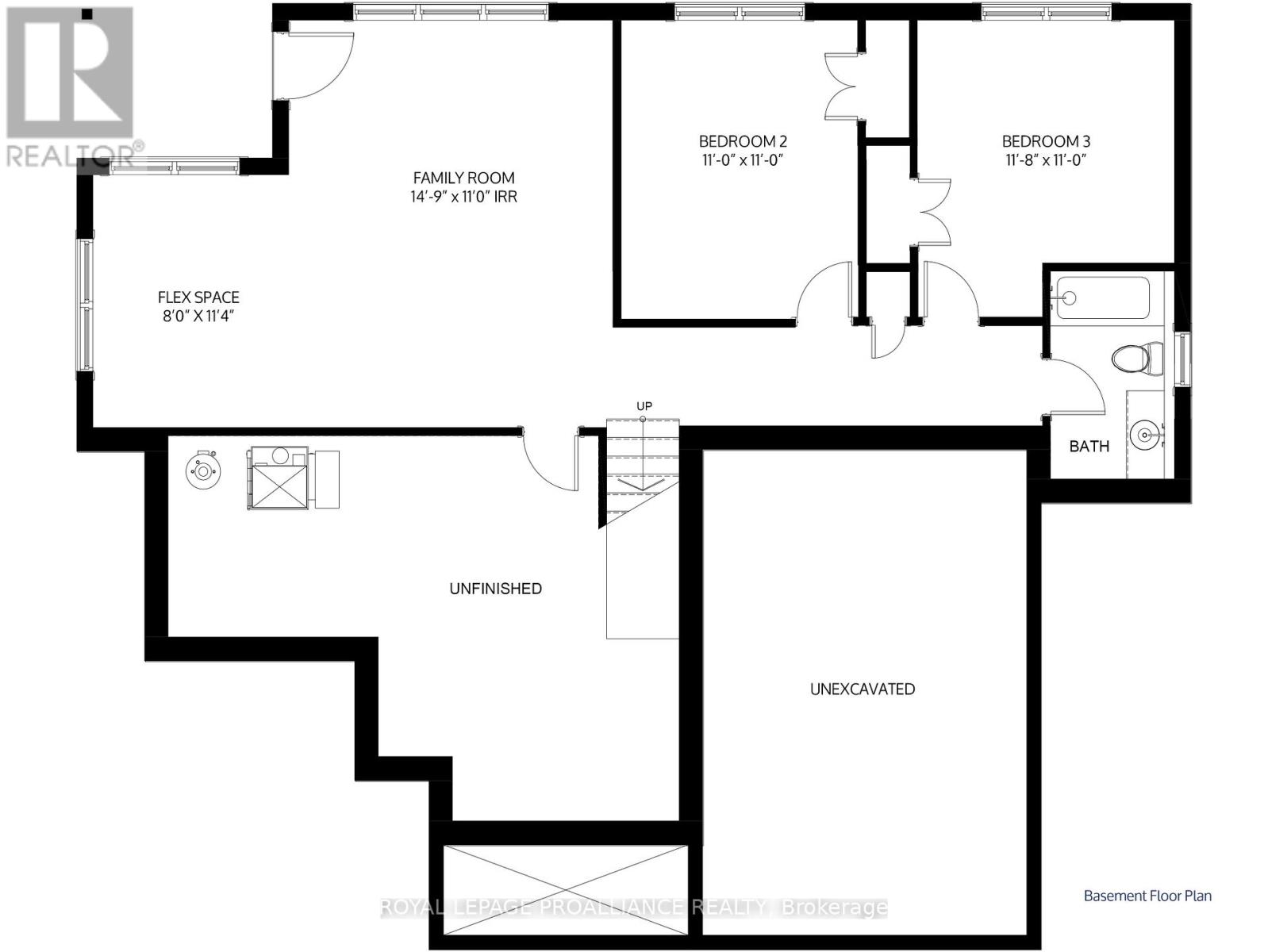
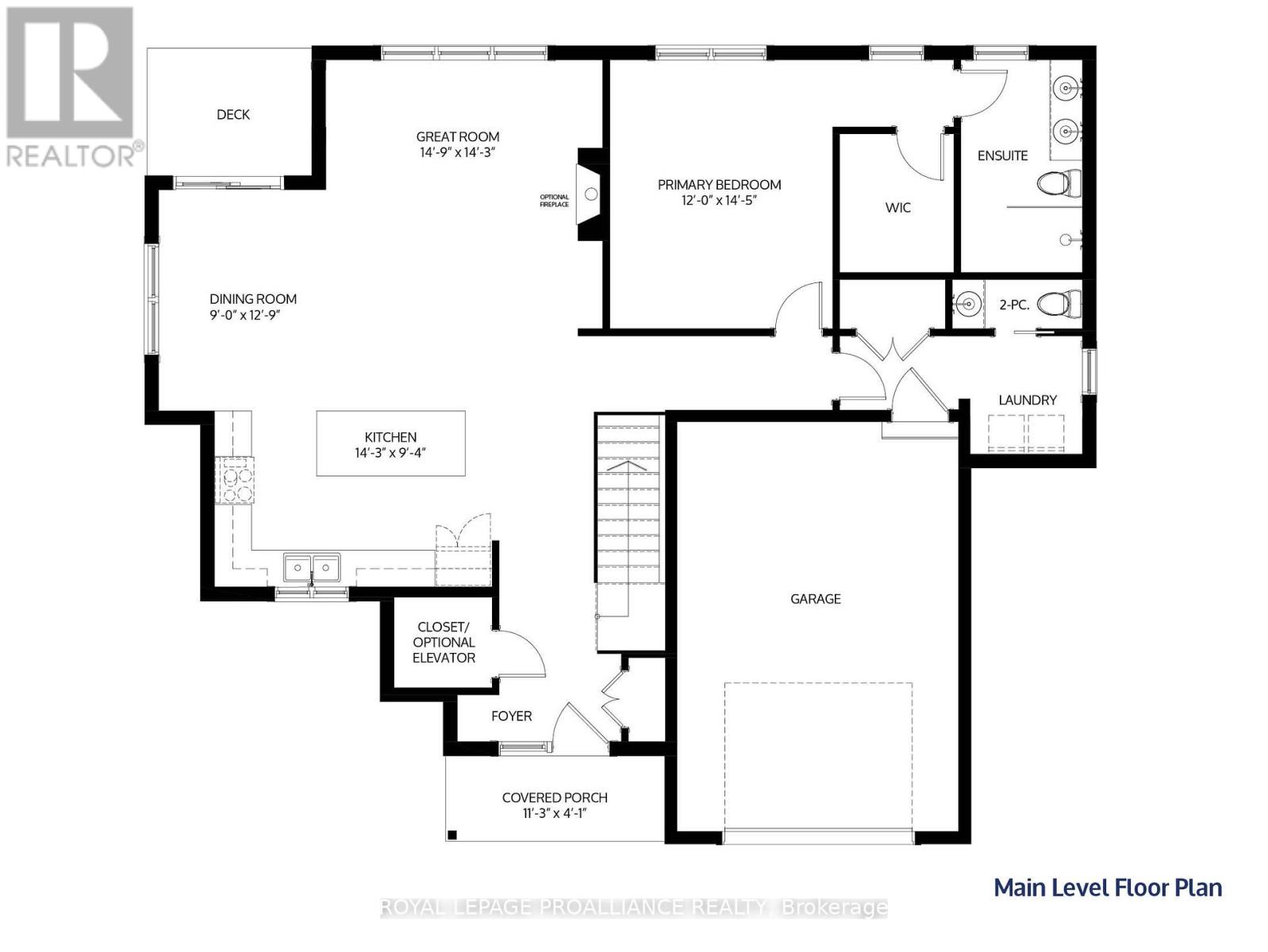
OPEN HOUSE - Check in at Eastfields Model Home 60 Willowbrook St., Colborne. The Brix is a one-of-a-kind custom bungalow in the new Eastfields community built by prestigious local builder. Designed exclusively for a prime cul-de-sac lot, this unique home offers 2,325 sqft of thoughtfully designed living space, featuring a fully finished basement with a walk-out, making it the only model of its kind in the entire community. Step inside through the private foyer, where you'll find a closet for storage and a rough-in elevator, which can also be used as an additional storage closet. The open-concept kitchen, dining, and great room provide a spacious and welcoming feel, with an optional fireplace and access to a back deck. The main floor is home to a primary bedroom retreat, complete with a large walk-in closet and a luxurious 4-piece ensuite. Access the garage through the mudroom, which is conveniently equipped with laundry and a powder room. Downstairs, the fully finished basement expands your living space with two additional bedrooms, a full bathroom, and a large rec room/family space with a walk-out to the backyard. This home comes packed with quality finishes including: Maintenance-free, Energy Star-rated North star vinyl windows with Low-E-Argon glass; 9-foot smooth ceilings on the main floor; Designer Logan interior doors with sleek black Weiser hardware; Craftsman-style trim package with 5 1/2 baseboards and elegant casings around windows and doors; Premium cabinetry; Quality vinyl plank flooring; Moen matte blackwater-efficient faucets in all bathrooms; Stylish, designer light fixtures throughout. 7 Year Tarion New Home Warranty. (id:51158)

MLS# X11969732 – FOR SALE : 7 Merriman Court N Colborne Cramahe – 3 Beds, 3 Baths Detached House ** The Brix is a one-of-a-kind custom bungalow in the new Eastfields community built by prestigious local builder. Designed exclusively for a prime cul-de-sac lot, this unique home offers 2,325 sqft of thoughtfully designed living space, featuring a fully finished basement with a walk-out, making it the only model of its kind in the entire community. Step inside through the private foyer, where you’ll find a closet for storage and a rough-in elevator, which can also be used as an additional storage closet. The open-concept kitchen, dining, and great room provide a spacious and welcoming feel, with an optional fireplace and access to a back deck. The main floor is home to a primary bedroom retreat, complete with a large walk-in closet and a luxurious 4-piece ensuite. Access the garage through the mudroom, which is conveniently equipped with laundry and a powder room. Downstairs, the fully finished basement expands your living space with two additional bedrooms, a full bathroom, and a large rec room/family space with a walk-out to the backyard. This home comes packed with quality finishes including: Maintenance-free, Energy Star-rated North star vinyl windows with Low-E-Argon glass; 9-foot smooth ceilings on the main floor; Designer Logan interior doors with sleek black Weiser hardware; Craftsman-style trim package with 5 1/2 baseboards and elegant casings around windows and doors; Premium cabinetry; Quality vinyl plank flooring; Moen matte blackwater-efficient faucets in all bathrooms; Stylish, designer light fixtures throughout. October 2, 2025 closing available & 7 Year Tarion New Home Warranty. (id:51158) ** 7 Merriman Court N Colborne Cramahe **

Open House

This property has open houses!

January
24
Saturday
Starts at:

11:00 am

Ends at:

2:00 pm

January
31
Saturday
Starts at:

11:00 am

Ends at:

2:00 pm

Property Details

MLS® Number X11969732
Property Type Single Family
Community Name Colborne
Amenities Near By Golf Nearby, Park, Place Of Worship, Schools
Community Features Community Centre, School Bus
Easement Sub Division Covenants
Equipment Type None
Features Flat Site, Sump Pump
Parking Space Total 2
Rental Equipment Type None
Structure Deck, Porch

Building

Bathroom Total 3
Bedrooms Above Ground 1
Bedrooms Below Ground 2
Bedrooms Total 3
Age New Building
Appliances Garage Door Opener Remote(s), Water Heater
Architectural Style Bungalow
Basement Development Finished
Basement Features Walk Out
Basement Type Full (finished)
Construction Style Attachment Detached
Cooling Type Central Air Conditioning
Exterior Finish Vinyl Siding
Fire Protection Smoke Detectors
Foundation Type Poured Concrete
Half Bath Total 1
Heating Fuel Natural Gas
Heating Type Forced Air
Stories Total 1
Size Interior 1,100 - 1,500 Ft2
Type House
Utility Water Municipal Water

Parking

Attached Garage

Land

Access Type Public Road, Year-round Access
Acreage No
Land Amenities Golf Nearby, Park, Place Of Worship, Schools
Sewer Sanitary Sewer
Size Depth 29.4 M
Size Frontage 15 M
Size Irregular 15 X 29.4 M
Size Total Text 15 X 29.4 M|under 1/2 Acre

Rooms

Level Type Dimensions
Basement Bedroom 2 3.35 m x 3.35 m
Basement Bedroom 3 3.56 m x 3.35 m
Basement Family Room 7.32 m x 3.43 m
Basement Recreational, Games Room 4.5 m x 2.06 m
Main Level Great Room 4.5 m x 4.34 m
Main Level Dining Room 2.74 m x 3.89 m
Main Level Kitchen 4.34 m x 2.84 m
Main Level Primary Bedroom 3.66 m x 4.39 m

Utilities

Cable Available
Electricity Installed
Sewer Installed

https://www.realtor.ca/real-estate/27907902/7-merriman-court-cramahe-colborne-colborne

Contact Us

Contact us for more information

Your Favourites

 

No Favourites Found

 

Get Priority Access

Be the First to Access to Reduced, Bank Owned, Must Sell, Bank foreclosures, Estate Sales, probate, coming soon  and Off-Market Homes For Sales.